Sign In or Create a Free Account to see full details of this property
Key Facts
Key facts for 3931 Wood Avenue
Property Type
House, 2-Storey
Parking
Attached 2 garage, 4 parking
MLS #
S12481466
Size
2000-2500 sqft
Basement
Crawl Space,Half
Listed on
2025-10-24
Lot size
49 x 138.8
Tax
$4,000 /yr
Days on Market
6
Approximate Age
6-15
Maintenance Fee
-
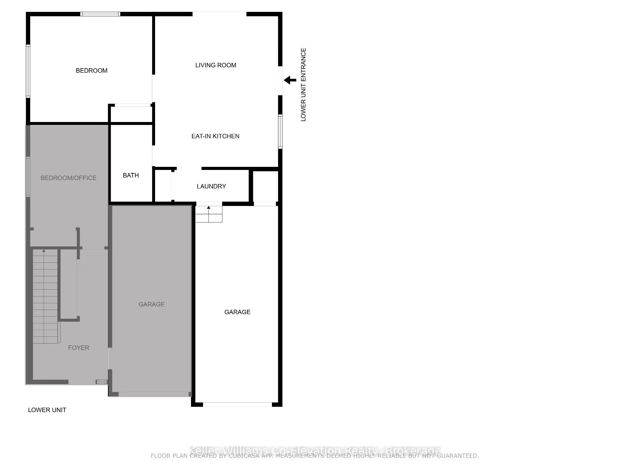
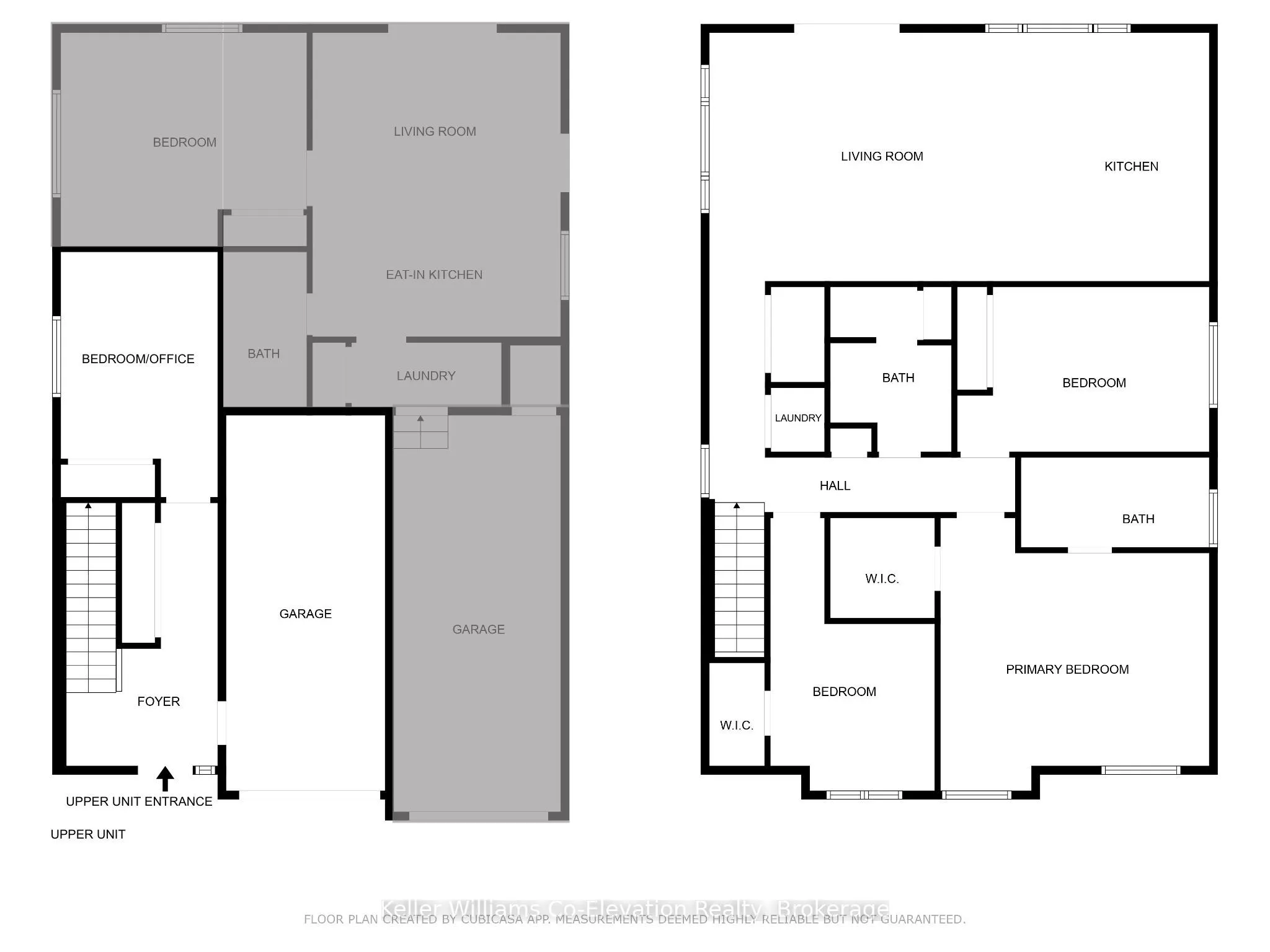
Description
Modern, purpose-built duplex with a double garage in a sought-after lakeside community offering private beach access, just minutes from Hwy 11. Set on a generous lot, this clean and well-maintained property offers strong functionality and great curb appeal. The spacious 3-bedroom main unit is vacant... and move-in ready, featuring a bright open-concept living area with sliding doors leading to a patio overlooking the backyard, two bathrooms, and a primary suite complete with walk-in closet and private ensuite. Just off the main entrance, a flexible bonus room provides the perfect setup for a home office, guest space, or even a private area for a home-based business. The second above-ground unit offers a bright and efficient 1-bedroom, 1-bathroom layout with its own entrance, ideal for extended family, friends, or to help offset monthly costs. Both units feature high ceilings, oversized bedrooms, in-suite laundry, central A/C, forced-air gas heat, owned hot water tanks, and inside entry from the garage. Whether you're looking for a multi-generational setup, a place to keep loved ones close, or a home that makes ownership more affordable, this is a rare opportunity in a prime location near Lake Couchiching. Live by the lake, walk to the private beach, and grab Webers in under five minutes.
Similar Properties(No results)
Mortgage Calculator
Calculate your estimated monthly mortgage payment
Price
$729,900
$
%
%
Total cost of mortgage
$0
Monthly payment
By clicking Save, we will calculate your estimated mortgage for all properties using the saved values (down payment percentage, interest rate, and amortization).
The accuracy and applicability of this calculator are not guaranteed.